Create Your First Project
Start adding your projects to your portfolio. Click on "Manage Projects" to get started
LABKHAND
Project Type
Cultural
Location
Tehran, Iran
Date
2023 - 2025
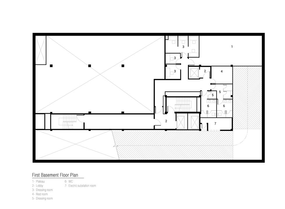
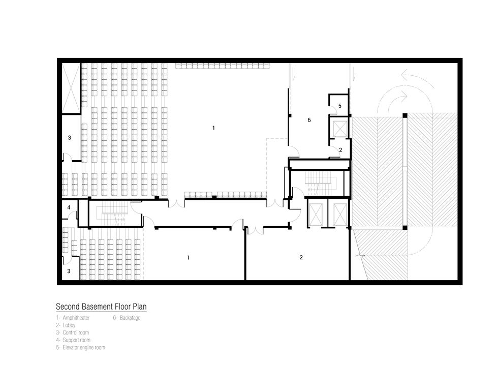
Located in downtown Tehran near the University of Tehran, the Labkhand Theater Hall Complex is shaped by a dense cultural context and strict urban constraints. A limited site area, intensive program, and a rigid height restriction required a compact yet highly layered architectural response. Rather than organizing the building as a stack of isolated floors, the design adopts a theatrical logic in which staggered levels overlap and interact, allowing each space to act as a stage for another.
This interwoven arrangement transforms circulation into a performative experience, where movement, encounter, and anticipation are carefully orchestrated. Vertical shifts extend from interior spaces to the street façade, forming projecting terraces that articulate the building’s presence in the city. Circulation unfolds through contrasting sequences: gradual spatial transitions via stairs and sudden spatial revelations via elevators. Precast concrete panels and angled cantilevers unify structure and form, expressing the project’s dynamic spatial layering and reinforcing its identity as a contemporary cultural landmark.
























